Drabina kablowa LG 60, 6 m VS FS

Nr kat. 6208627 | EAN 4012195064251

6000 mm
1,5 mm
Stal
cynkowana metodą Sendzimira
Opis produktu
Opis produktu
Drabina kablowa z perforowaną ścianą boczną o wysokości boku 60 mm połączoną nitami, otwartymi od góry, ze szczeblami profilu C (wersja VS).
Magnetyczna tłumienność sprzężeniowa bez pokrywy 10 dB, z pokrywą 15 dB.

Drabina kablowa jest dostarczana w wersji złożonej.

Kable mocować za pomocą pasującej obejmy typu 2056.

Drabiny kablowe o szerokości od 200 mm do 400 mm są również dopuszczone do montażu pionowego jako drabiny pionowe w instalacjach z elektrycznych z podtrzymaniem funkcji zgodnie z DIN 4102 część 12. Kable mocować za pomocą obejm typu 2056 M, które są dopuszczone do instalacji z podtrzymaniem funkcji.

  • Magnetyczna tłumienność sprzężeniowa
  • Oświadczenie o zgodności z dyrektywami WE
  • Deklaracja zgodności UKCA
  • Deklaracja środowiskowa produktu (EPD)
  • Ślad węglowy (PCF)
Dane techniczne

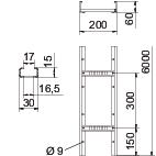
Wymiary

Długość 6000 mm
Grubość boku 1,5 mm
Kolor cyjan
Materiał Stal
Ochrona przeciwpożarowa Podtrzymanie funkcji: normatywna konstrukcja nośna
Perforacja boczna tak
Podtrzymanie funkcji tak
Powierzchnia cynkowana metodą Sendzimira
Przekrój poprzeczny 98 cm²
Przekrój poprzeczny 9800 mm²
Rozstaw podpór 1,5 m 3,1 kN/m
Rozstaw podpór 2,0 m 2,25 kN/m
Rozstaw podpór 2,5 m 1,5 kN/m
Rozstaw podpór 3,0 m 1,1 kN/m
Rozstaw podpór 3,5 m 0,75 kN/m
Rozstaw podpór 4,0 m 0,45 kN/m
Rozstaw podpór 4,5 m 0,3 kN/m
Rozstaw podpór 5,0 m 0,15 kN/m
Rozstaw szczebli 300 mm
Ślad węglowy CO2 (GWP) od kołyski po bramę 6,3788 kg CO2e / 1 Metr
Stal nierdzewna, wytrawiana brak
Szerokość 200 mm
Wersja szczebli Profil perforowany
Wykonanie profilu bocznego płaski profil
Wykonanie szerokorozpiętościowe brak
Wymiar 60x200x6000
Wymiar 60x200x6000
Wymiar B 200 mm
Wymiar szczeliny szczebla 16,50
Wysokość 60 mm
Zamocowanie szczebla łączone nitami jednostronnie zamykanymi

Dane techniczne

Wykres obciążenia drabiny kablowej typu LG 60 VS

Wykres obciążenia drabiny kablowej typu LG 60 VS
  • Dopuszczalne obciążenie korytka/drabiny w kN/m bez ciężaru montera Dopuszczalne obciążenie korytka/drabiny w kN/m bez ciężaru montera
  • Odstęp pomiędzy podporami w m Odstęp pomiędzy podporami w m
  • Ugięcie trasy w mm przy dopuszczalnym obciążeniu kN/m Ugięcie trasy w mm przy dopuszczalnym obciążeniu kN/m
  • Rozkład obciążenia podczas badania Rozkład obciążenia podczas badania
  • Wykresy obciążeń dla różnych szerokości koryta kablowego / drabiny w mm Wykresy obciążeń dla różnych szerokości koryta kablowego / drabiny w mm
  • Wykres ugięcia trasy w zależności od rozstawu podpór Wykres ugięcia trasy w zależności od rozstawu podpór
Wszystkie typy

Wszystkie typy

Typ Długość Szerokość Grubość boku Podtrzymanie funkcji Materiał Powierzchnia Nr kat. Ilość Najmniejsza sprzedawana ilość
LG 620 VS 6 FS 6000 mm 200 mm 1,5 mm tak Stal cynkowana metodą Sendzimira 6208627
6 m
LG 630 VS 6 FS 6000 mm 300 mm 1,5 mm tak Stal cynkowana metodą Sendzimira 6208630
6 m
LG 640 VS 6 FS 6000 mm 400 mm 1,5 mm tak Stal cynkowana metodą Sendzimira 6208633
6 m
LG 650 VS 6 FS 6000 mm 500 mm 1,5 mm brak Stal cynkowana metodą Sendzimira 6208636
6 m
LG 660 VS 6 FS 6000 mm 600 mm 1,5 mm brak Stal cynkowana metodą Sendzimira 6208639
6 m
Dodatki

Akcesoria systemowe

Produkty Typ Nr kat. Ilość Najmniejsza sprzedawana ilość
Pokrywa z ryglem obrotowym FS Pokrywa z ryglem obrotowym FS DRL 200 FS 6052207
3 m
Łącznik wzdłużny FS Łącznik wzdłużny FS LVG 60 FS 6208840
10 Sztuka
Łącznik kątowy 60 FS Łącznik kątowy 60 FS LWVG 60 FS 6208895
10 Sztuka
Łącznik przegubowy FS Łącznik przegubowy FS LGVG 60 FS 6208941
10 Sztuka
Łącznik wielofunkcyjny FS Łącznik wielofunkcyjny FS LMFV 620 FS 6225710
1 Sztuka
Łuk 90° 60 FS Łuk 90° 60 FS LB 90 620 R3 FS 6225042
1 Sztuka
Trójnik 60 FS Trójnik 60 FS LT 620 R3 FS 6225210
1 Sztuka
Trójnik dostawny 60 FS Trójnik dostawny 60 FS LAA 620 R3 FS 6225850
1 Sztuka
Element łuku przegubowego 60 FS Element łuku przegubowego 60 FS LGBE 620 FS 6225450
1 Sztuka
Łuk 90° 60 FS Łuk 90° 60 FS LB 90 620 R5 FS 6211422
1 Sztuka
Nasadka ochronna 60 Nasadka ochronna 60 SKH 60 OR 6222537
40 Para
Zacisk przyłączeniowy FS Zacisk przyłączeniowy FS LAS 60 FS 6221351
10 Sztuka
Przegroda 45 FS Przegroda 45 FS TSG 45 FS 6062033
3 m
Płyta narożna FS Płyta narożna FS LEB 25 FS 6221203
1 Sztuka
Płyta narożna FS Płyta narożna FS LEB 50 FS 6221246
1 Sztuka
Do pobrania

Do pobrania

Do pobrania
Do pobrania

Do pobrania
Do pobrania

LG 620 VS 6 FS / 6208627
Do pobrania